VOLKSSCHULE BROCKMANN
Graz
2015 bis 2017
Gebäude- und Baumanagement
Graz GmbH
Generalplanung
Objektplanung Architektur
LPH 2-8
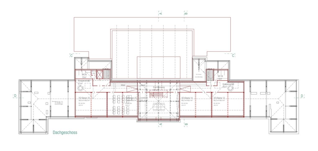
Durch einen eingeschossigen Zubau um einen zentralen Hof im 1. Obergeschoss und der großflächigen Anbindung der Bestands-Gangflächen wurde ein großzügiges neues „Zentrum“ geschaffen. Um den zentralen Hof ist ein Lern-Marktplatz mit der Ganztagesbetreung und SPZ-Clustern (sonderpädagogisches Zentrum), sowie den Klassen im 1.OG. angeordnet. Der Hof kann in der warmen Jahreszeit großflächig geöffnet werden und dient so als Pausenbereich im Freien oder Freiklasse. Der zentrale Lern-Marktplatz bricht die Länge der bestehenden Gangflächen, der zentrale Hof im 1.OG. orientiert sich geometrisch an der mittleren Fassadenfläche mit dem überhöhten Dachkörper. Der eingeschossige, über den Turnsaal schwebende Zubau, orientiert sich symetrisch an den Risaliten und versteht sich thematisch als „Baumhaus“. Das Bestandsgebäude wird so zwischen Park und eingebettet. Das Thema der Bäume umfasst somit den gesamten Schulkomplex. Der Dachboden des Bestandes wurde zu ca. 50% ausgebaut. Mit dem neuen „Leseturm“ im überhöhten Mitteltrakt wird ebenfalls ein Zentrum für das Dachgeschoss geschaffen und somit die zentrale Grundsymmetrie des Bestandes unterstrichen. Die Grundstruktur wurde dabei von den Regelgeschossen übernommen, die breiten Gangflächen erstrecken sich über die gesamte Ausbaulänge und können als offene Lernzonen genutzt werden. Der Dachstuhl der äußeren Klassentrakte wurde durch eine einfache Stahlrahmenkonstruktion ersetzt, dadurch entsteht eine großzügige und stützenfreie Raumstruktur. Die Klassen entsprechen in Größe, Kubatur und Belichtung den Anforderungen der ÖISS Schulbaurichtlinien. Die 4 Klassen sind durch die durchgehenden Lichtbänder sehr gut von Norden belichtet und weiten sich zusätzlich optisch Richtung Gangflächen mittels großzügiger Glasflächen aus. Der Leseturm wird durch die erhaltene Dachstuhlkonstruktion und den thematisch aus dem Bestand übernommenen Rundfenstern charakterisiert. Diese Bibliothek ist Multifunktionsraum und wird auch optional als Musikraum, Besprechungsraum, Gruppenraum etc. genutzt.













Copyright Architektur – Auftragnehmer: balloon architekten ZT.OG – Rampula – Gratl – Wohofsky
Verantwortlich auf Geschäftsführungsebene:
Wettbewerbsleitung: Arch. DI Andreas Gratl, Arch. DI Johannes Wohofsky
Objektplanung Architektur, Generalplanermanagement: Arch. DI Johannes Wohofsky, Arch. DI Iris Rampula
MitarbeiterInnen:
DI Ana Masu
Copyright Text, Pläne, Modell:
balloon architekten ZT.OG – Rampula – Gratl – Wohofsky
Copyright Fotos:
Schreyer, David
